发布日期:2026-04-27 访问量:39
北京电动汽车充电桩安装施工解决方案-凯源恒润北京监控安装工程公司

凯源恒润北京监控安装工程公司分享汽车充电桩安装说明:
一、安装前期准备
安装时需要的工具如下:
十字螺丝刀、剥线钳、活动扳手、铁锤、3.5*35螺丝钉、8MM膨胀螺丝、冲击钻、胶塞、6MM、10MM冲击钻头
二、安装注意事项
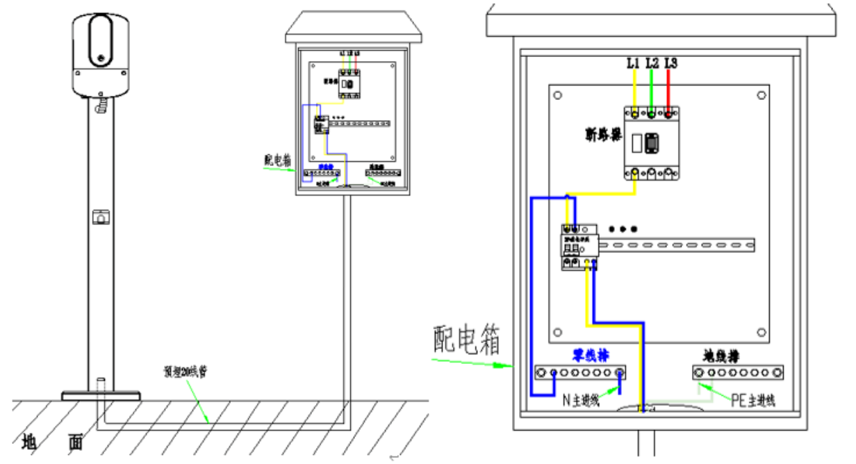
请严格按照接线要求,正确接入;
确认所有紧固件都已锁紧,确保充电桩的牢固性。
接线时铜线不能外露,检查接线头电工胶包扎良好
三、安装方案A(落地安装)
1、设备安装前先在地面开挖一个深为400MM长为450MM宽为400MM,且做好PVC线管预埋(线管可用Ø20的)如下图1:

图1
2、准备好水泥沙子 石子,混合后再将其埋入开挖好的土坑里,待水泥硬化下一步开始安装设备;

3、在预埋线管内穿入一组6平方铜芯线,设备端从地面穿出预留1.4米的线用来接入设备,线的另一端布线到配电箱预留25厘米左右。(注:布线时要有三条线,分别为火线、零线、地线)图2:

图2
4、用设备支架在预浇好的水泥基上画出打固定螺丝孔位,在用10MM的冲击钻打4个孔装上M8的膨胀螺丝。图3:

图3
5、将预留好的电线从设备支架中间穿入,再把支架装到4个膨胀螺丝上固定。图4:

图4
6、先把充电主机与立柱贴合对准螺丝孔位,再用4个M4的机制螺丝从立柱后面锁付紧固,最后将立柱后部的安装孔用盖板锁付螺丝盖住。

图5
7、安装接线分明,严格按照充电桩机内接线图的线序要求安装,接线前需先拆下主机下端接线盖板的三个螺丝来去下接线盖板进行接线;如图6

如图6
8、设备主电线从立柱上穿线孔穿出,在用20PVC波纹管接入主机进线口。如图

图7
9、零火线接入设备漏电开关的输出端,地线接到接地端口。图8

图8
10、主线取电需从配电箱单相漏电开关接入(漏电开关必需大于40A),地线从地线排上连接,图9

图9
注:安装场地若是硬化水泥地可可免去地面开挖浇筑水泥,可直接打膨胀螺丝固定。
四、安装方案B(壁挂式安装)
1、壁挂附件件一件,如图10

图9
2、先将壁挂附件贴在墙上在画出打孔位置,再用冲击钻配合6MM的冲击钻头钻头打孔,再将塑料胶塞锤入孔中,再用M3.5*35的木工螺丝的螺丝固定壁挂附件,最后用随机配送的M4螺丝将充电主机与壁挂附件锁付连接即可。如图10

图10
3、最后用一条6平方的电线套上PVC管从配电箱接入充电桩主机箱内,并接入到设备的漏电开关上。如图11


北京大中小学校监控网络与智慧黑板一体化系统解决方案-凯源恒润北京监控安装工程公司
北京大中小学校监控网络与智慧黑板一体化系统解决方案-凯源恒润北京监控安装工程公司 ...
2026-04-11141

北京工厂周界缆式振动光缆周界报警系统解决方案--一凯源恒润北京监控安装工程公司
北京工厂周界缆式振动光缆周界报警系统解决方案--一凯源恒润北京监控安装工程公司 凯源...
2025-11-20640

北京小区停车场管理(车牌识别)系统安装方法及常见故障解决方案-凯源恒润北京监控安装工程公司
北京小区停车场管理(车牌识别)系统安装方法及常见故障解决方案-凯源恒润北京监控安装工程公司...
2025-07-021248

北京科技园工业园区智能配电系统解决方案-凯源恒润北京监控安装工程公司
北京科技园工业园区智能配电系统解决方案-凯源恒润北京监控安装工程公司 在电力系统向数...
2025-06-251307

北京医院智能照明控制系统解决方案-凯源恒润北京监控安装工程公司
北京医院智能照明控制系统解决方案-凯源恒润北京监控安装工程公司 项目特征 效果展示...
2025-06-111000

北京高速公路隧道综合监控运维系统解决方案-凯源恒润北京监控安装工程公司
北京高速公路隧道综合监控运维系统解决方案-凯源恒润北京监控安装工程公司 第一章:痛点...
2025-04-161112

北京商业办公楼综合布线系统解决方案-凯源恒润北京监控安装工程公司
北京商业办公楼综合布线系统解决方案-凯源恒润北京监控安装工程公司 现代写字楼正向综合...
2024-10-301410

北京老旧小区道闸系统主线路网络整改解决方案-凯源恒润北京监控安装工程公司
北京老旧小区道闸系统主线路网络整改解决方案-凯源恒润北京监控安装工程公司 北京老旧小...
2024-10-231806